EN
新机销售电话:020-81585016
配件销售电话:020-81801008
您的位置:首页 > 产品中心产品中心 · Product
9缸
  • 产品详细
  • 详细属性
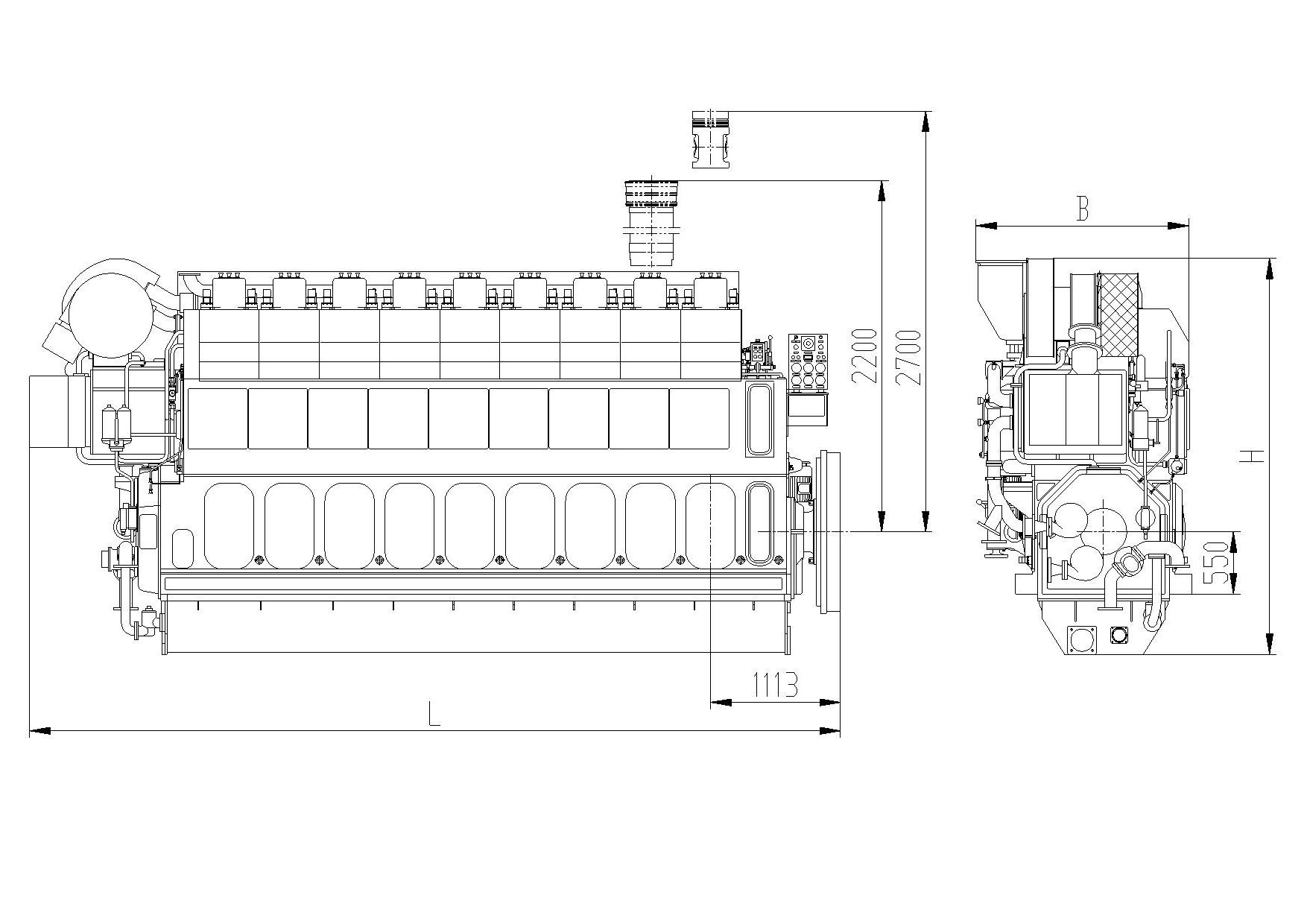
  • 9缸船用主机 Marine main engine


    项目Items 单位Unit
    系列Series   G32
    型号Model   9G32 
    功率Power kW/Ps 4400/6000
    转速Speed rpm 600
    缸径Bore mm 320
    冲程Stroke mm 480
    活塞平均速度 Mean piston speed m/s 9.6
    平均有效压力 BMEP MPa 2.53
    燃油(气)消耗率Fuel consumption 100%MCR g/kWh 181
    85%MCR 179
    润滑油消耗率Lube oil consumption g/kWh 0.8
    外形尺寸 Outline dimension      (长×宽×高)(L×B×H) mm 7257×1910×3745
    重量 Weight kg 54000
    双主机安装最小中心距离 mm 2750
    证书   CCS/GL/NK/BV
    燃料类型Fuel type   380cSt/50℃ HFO




    说明Explantions:

    1、各型号发动机的供货范围,按相应技术文件执行。


    The delivery scope for each model engines shall be performed as per the corresponding technical files.
    2、所有机型均可满足IMO TireⅡ的要求。


    All the model engines can meet IMO Tire requirements.



友情链接

粤公网安备 44010302000935号