EN
新机销售电话:020-81585016
配件销售电话:020-81801008
您的位置:首页 > 产品中心 > 船用发电机组 > G26系列产品中心 · Product
1825-2850kW
  • 产品详细
  • 详细属性
  • 船用发电机组Marine generator set





    项目Items 单位Unit





    系列Series   6G26系列 8G26系列 9G26系列
    机组型号Gen-Set Model   CCFJ1825J-W CCFJ1900J-W CCFJ2430J-W CCFJ2530J-W CCFJ2735J-W CCFJ2850J-W
    发动机型号Engine Model   6G26 8G26 9G26
    机组功率Power kW 1825 1900 2430 2530 2735 2850
    频率Frequency Hz 60 50 60 50 60 50
    转速Speed r/min 720 750 720 750 720 750

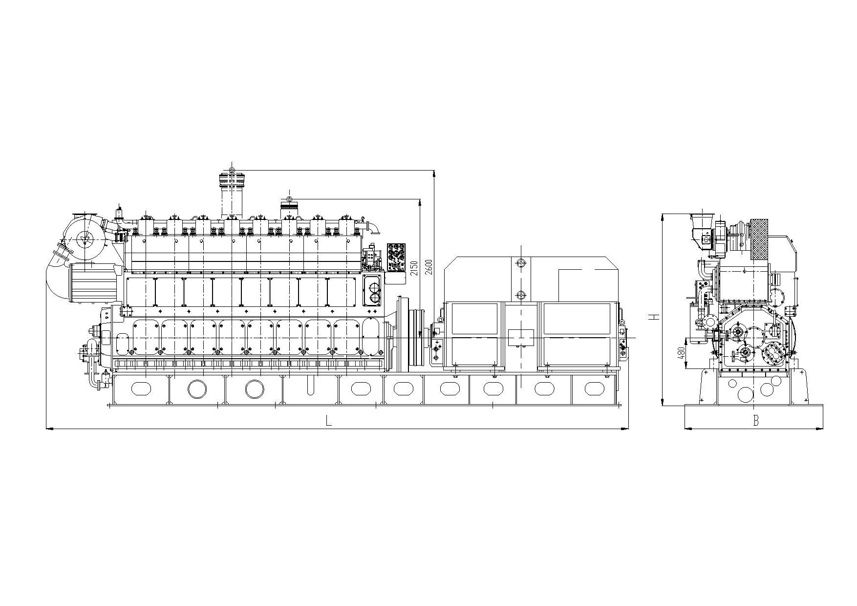
    外形尺寸 

    Outline dimension

    (长×宽×高)(L×B×H)

    mm 8152×2152×3120 9042×2152×3120 9487×2152×3120
    重量 Weight kg 53000 61000 74300
    证书   CCS
    燃料类型Fuel type   380cSt/50℃ HFO








    说明Explantions:





    1、各型号机组的供货范围,按相应技术文件执行。





    The delivery scope for each model engines shall be performed as per the corresponding technical files.
    2、所有机型均可满足IMO TireⅡ的要求,可提供400V690V6600V11000V等不同电压的产品。


    All the model engines can meet IMO Tire Ⅱ requirements. Voltage of generator set appointed by customer, such as 400V, 690V, 6600V, 11000V.

友情链接

粤公网安备 44010302000935号